Dầm treo giàn giáo bao che
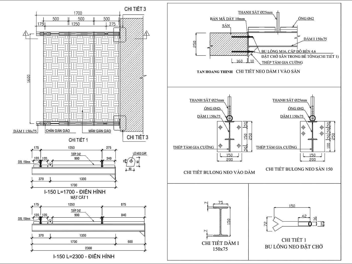
Dầm treo giàn giáo bao che (còn gọi là dầm I bao che, dầm bao che công trình) là bộ phận quan trọng trong hệ thống giàn giáo bảo vệ tại các công trình, đặc biệt là nhà cao tầng. Dầm treo giàn giáo thường làm từ thép hình (chủ yếu là I), được cố định vào kết cấu bê tông (như sàn, dầm) bằng bu lông neo.
.jpg)
Vì sao cần dùng dầm treo? Có nên sử dụng dầm treo giàn giáo bao che
1. Đảm bảo an toàn lao động
Bảo vệ công nhân: Dầm tạo nền vững chắc, giảm nguy cơ rơi ngã khi làm việc trên cao.
Ngăn vật rơi: Lưới bao che gắn vào dầm giúp chặn gạch, cát, xi măng, dụng cụ rơi xuống, tránh gây nguy hiểm cho người bên dưới và khu vực xung quanh.
2. Bảo vệ công trình và môi trường
Hjan chế tác động của thời tiết: Giàn che chắn mưa, gió, nắng, giúp duy trì chất lượng và tuổi thọ công trình.
Giảm bụi bẩn, ô nhiễm: Lưới hạn chế bụi, vật thể bay ra ngoài, góp phần giữ vệ sinh và môi trường xung quanh thi công.
.jpg)
Xem thêm sản phẩm cáp chịu lực dùng cho dầm treo tại đây.
3. Tăng hiệu quả thi công
Môi trường làm việc tốt hơn: Giúp công nhân thoải mái, làm việc năng suất.
Duy trì tiến độ: Hạn chế gián đoạn do thời tiết xấu.
4. Tuân thủ các quy định về thi công xây dựng
Ở nhiều quốc gia, giàn giáo bao che là bắt buộc với công trình trên 5 tầng theo quy định an toàn. Tuân thủ giúp tránh vi phạm, bị xử phạt.
5. Tăng thẩm mỹ, hình ảnh dự án
Giúp che chắn công trình đang thi công, giữ mỹ quan và hình ảnh chuyên nghiệp. Đảm bảo tiêu chuẩn kỹ thuật lắp đặt.
.jpg)
Yêu cầu kỹ thuật của dầm i treo giàn giáo bao che
Hiện nay nhiều người dùng phương án thép hộp 50x100, hộp 40x80, hay dùng thép i100, i150 kê đòn để gánh hoặc chống tạm từ bên dưới lên...vv, tuy nhiên dầm treo giàn giáo bao che có những yêu cầu riêng và phải đảm bảo tính kỹ thuật khi hàn ghép bản mã và tính chịu lực. Để đảm bảo an toàn thì dùng dầm i150 bản mã dày 10 li có ống tròn phi 42x1.4ly để hứng mâm giàn giáo và có bu lông đuôi cá để neo dầm mới đúng kỹ thuật. Không nên gá tạm hay chống đòn vì giàn giáo bao che là giàn khung giáo H và tốt nhất bạn nên chất chồng giàn tối đa là 7 bộ theo chiều đứng.

1. Yêu cầu kỹ thuật dầm i treo giàn giáo
Vật liệu: Thép phải đạt chuẩn, không nứt, cong, gỉ sét, mối hàn phải to dày và đảm bảo chắc chắn, chịu lực cao.
Kết cấu: Là dầm khung hỗ trợ hệ giáo tạm bao che
Độ bền: Chịu được toàn bộ tải của giàn giáo, lưới, gió, người và vật liệu.
Độ cứng: Đảm bảo ổn định không gian, không rung lắc, lật đổ.
Kích thước: Dài 1.5m, 1.7m đến 4.2m, tiết diện phù hợp (như thép hình I150).
.jpg)
Mặt bích & bu lông: Có bản mã với lỗ liên kết bu lông neo sẵn trong bê tông, đảm bảo chịu lực cắt và nhổ. Tốt nhất dùng bulong đuôi cá
Neo giữ: Dầm gắn chặt vào mái hoặc sàn, có thể dùng cáp giằng hoặc đối trọng.
Khoảng cách: Cân đối theo tải trọng và loại giàn giáo, đảm bảo phân bổ đều.
2. An toàn thi công dầm i treo giàn giáo
Giàn giáo (và dầm treo) phải lắp vào cấu kiện vững chắc, không được neo vào các bộ phận yếu như ban công, lan can.
Phải có chống sét nếu giàn bằng kim loại.
Chỉ đưa vào sử dụng sau khi kiểm tra, nghiệm thu theo quy định.
Tham khảo tiêu chuẩn mới nhất TCVN 13662:2023.
Nói tóm lại là dầm treo bao che là thành phần thiết yếu, giúp đảm bảo an toàn, bảo vệ công trình – môi trường, và nâng cao hiệu quả thi công tại các công trình cao tầng. Do đó việc bao che bên ngoài cần rất nhiều lực nâng cũng như chịu đựng được gió mưa. Tại Đà Nẵng mùa mưa bão đến rất là phiền toái, do đó việc sử dụng dầm i treo giàn giáo bao che chuẩn mực từ đầu thì giản bớt những nguy hiểm trong thi công.
Sản xuất gia công cung cấp dầm treo giàn giáo bao che Đà Nẵng miền trung và các tỉnh.
Hotline/Zalo: 094 7672 333
Email: info@tanhoangthinh.com.vn





