Dầm thép hình treo giàn giáo bao che
Dầm I giàn giáo bao che, dầm I bao che công trình là loại dầm thép hình I100, I120, I150, I200... tùy thuộc từng chỉ định mà lựa chọn thép I cho phù hợp. Với Dầm thép hình treo giàn giáo là loại hình dầm treo và cần thiết khi xây dựng cao tầng cần giàn giáo bao che. Công ty cơ khí chuyên gia công dầm I giàn giáo bao che được sử dụng trong giàn giáo bao che công trình xây dựng, đỡ giàn giáo, dầm I giàn giáo bao che, dầm I bao che công trình tại Đà Nẵng.
Dầm treo dàn dáo bao che I150 dài 1,2m, 1,5m, 1,7m, 2,3m neo dầm bê tông và có cáp chịu lực đến 5 tấn treo làm sàn thao tác. Chúng tôi luôn sẵn sàng tư vấn và báo giá nhanh nhất cho bạn những cây dầm treo phù hợp. Dầm i neo sàn: Dầm I150 neo sàn, chiều dài 3m, 3.6m. Dầm neo cột I150 treo giàn giáo tại vị trí góc, chiều dài 3.6m, 4.0m...
Hình ảnh dầm thép hình I dùng cho giàn giáo bao che:

Dầm thép I150 thường được sử dụng trong các dự án xây dựng như giàn giáo bao che do khả năng chịu lực và độ bền cao.
Giàn giáo bao che nhà cao tầng đặc điểm dầm I giàn giáo bao che là được làm từ thép hình I100, I120, I150 và I200
– Dầm I giàn giáo bao che được sử dụng trong giàn giáo bao che, thép dầm treo đỡ giàn giáo bao che. Thép I có thể chịu được áp lực lớn và thường được chọn để xây dựng các công trình cần độ bền và độ an toàn cao.
– Dầm I150 và dầm I200 bao che được lắp cao bên trên, đảm bảo tuyến đường giao thông xung quanh công trình không bị cản trở.
– Dầm I150, I200 được neo cố định vào dầm bê tông hoặc sàn bê tông bằng bulong neo.
Dầm treo giàn giáo là một loại cấu trúc tạm hỗ trợ trong quá trình thi công xây dựng. Dầm treo thép I dùng để treo và cố định giàn giáo khi làm nhà cao tầng. Đây là một phần quan trọng trong việc xây dựng các tòa nhà cao tầng, giúp giàn giáo ổn định và an toàn cho công nhân khi làm việc trên cao.
Dầm treo thường là các thanh thép chữ I hoặc H, được chôn vào bê tông bằng các bulong đuôi cá M16 hoặc M18, khi lắp đặt các phần cố định của công trình như sàn bê tông hoặc dầm chính của tòa nhà. Giàn giáo sẽ được treo từ dầm treo này, giúp phân bố trọng lượng đều và giảm thiểu rủi ro cho công nhân.
– Theo đa số các công trình xây dựng cao tầng, dầm I150 là loại dầm treo thông dụng, bao che được phân thành các loại sau: Dầm I150 neo mặt đứng dầm bê tông, mặt đứng cột, chiều dài 1.25m, 1.7m
Bên cạnh việc treo dầm bằng bulong đuôi cá thì dầm treo còn được gia cường hỗ trợ bởi cáp treo chịu lực để neo phần đầu, tạo thành khung thép chắc chắn đỡ dầm, đặc biệt là khi xây dựng bao che trên cao.
– Dầm I200 neo mặt đứng, chiều dài 2m, sử dụng tại vị trí góc, dùng để đỡ dầm I150 dài 3.6m và 4.0m.
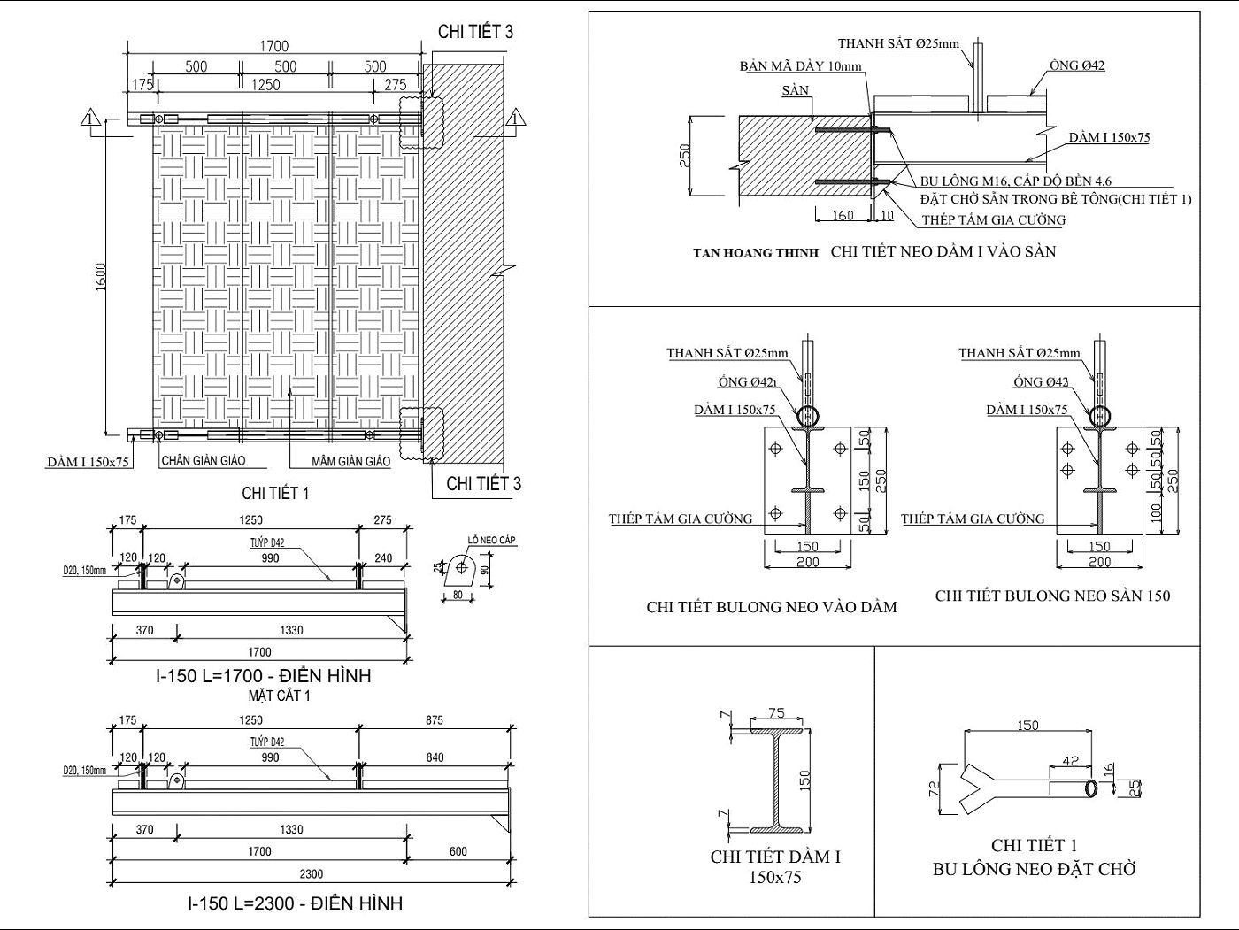
– Bản vẽ dầm I giàn giáo bao che, I150x75x1.7m neo mặt đứng bê tông.
Gia công chi tiết theo Bản vẽ dầm treo giàn giáo bao che, I100, I120, I150, I200 neo sàn bê tông tại Đà Nẵng.
Là đơn vị sản xuất gia công thép hình I và cơ khí, công ty chúng tôi nhận gia công cung cấp chi tiết dầm treo theo bản vẽ dầm I giàn giáo bao che, I100, I120, I150, I200 neo sàn bê tông tại Đà Nẵng và các tỉnh miền trung. Chúng tôi có ship hàng cho các tỉnh bằng xe tải.
Sản xuất, gia công cung cấp giàn giáo xây dựng Đà Nẵng uy tín, chất lượng, giá cả cạnh tranh cho công trình
Hotline: 094 767 2333
Email: info@tanhoangthinh.com.vn





